Casă individuală Premium – 3 camere | 300 mp teren | Stradă privată |
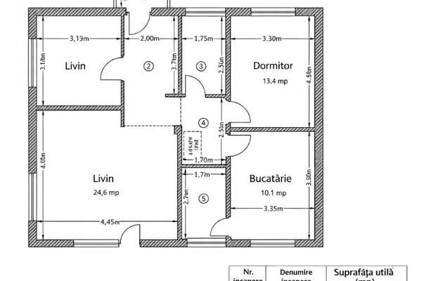
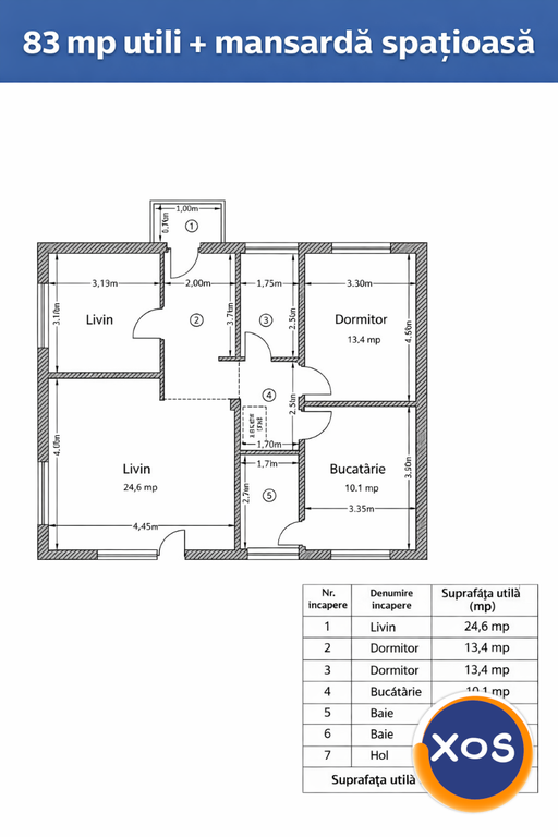
Se vinde casă individuală construită în 2022, situată în Bragadiru, într-un cartier rezidențial liniștit, pe stradă privată asfaltată. 🔹 Teren generos: 300 mp 🔹 Suprafață utilă parter: 83 mp + mansardă open space spațioasă 🔹 3 camere 🔹 Dormitor matrimonial cu baie proprie (duș) 🔹 2 băi total 🔹 2 locuri de parcare în curte + 1 loc în fața porții Casa este construită cu materiale de cea mai bună calitate și se vinde complet mobilată și utilată. Dotări și avantaje premium: ✔ Finisaje premium – cea mai bună calitate ✔ Încălzire în pardoseală ✔ Centrală proprie pe gaz ✔ Geamuri termopan tripan (izolație termică și fonică superioară) ✔ Poartă electrică ✔ Toate utilitățile racordate (gaz, curent, apă, canalizare) ✔ Curte proprie amenajată ✔ Cartier rezidențial exclusivist, cu acces restricționat Proprietatea este liberă și disponibilă imediat, fără investiții suplimentare necesare. 💎 O locuință ideală pentru o familie care își dorește confort, intimitate și calitate superioară a construcției, într-o zonă liniștită, dar cu acces rapid către București. Preț: 194.900 € – negociabil la vizionare Se acceptă și achiziție prin credit. Pentru mai multe detalii și programare vizionare, mesaj privat sau telefon.
https://www.xos.ro/imobiliare/vanzare/case/casa-individuala-premium-2013-3-camere-300-mp-teren-strada-privata-3
https://www.xos.ro/imobiliare/vanzare/case/casa-individuala-premium-2013-3-camere-300-mp-teren-strada-privata-3/73950.png
